Home
Current Development
All Properties
About Us
Contact Us
Search
Home
Current Development
All Properties
About Us
Contact Us
Search
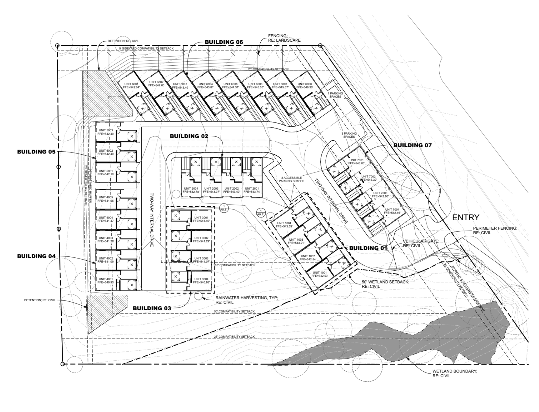
The Preserve
Year
2023
Address
5201 E Martin Luther King Jr Blvd, Austin, TX 78721
Available
Back to Map
Back to Map
All Properties
All Properties
View In Google Maps
View In Google Maps
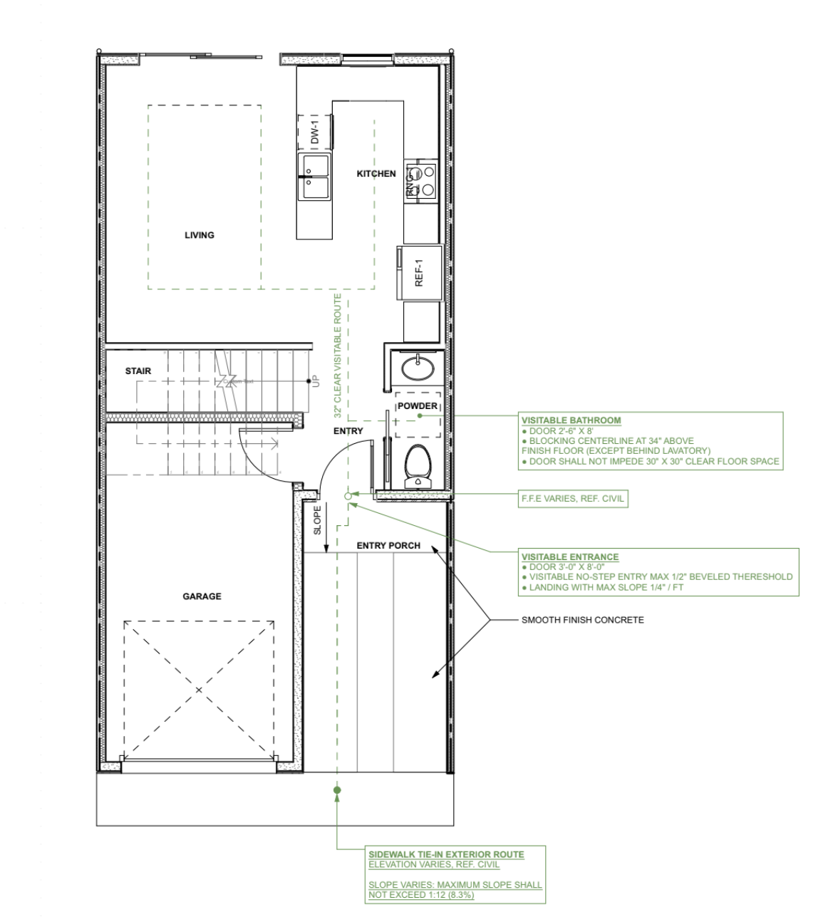
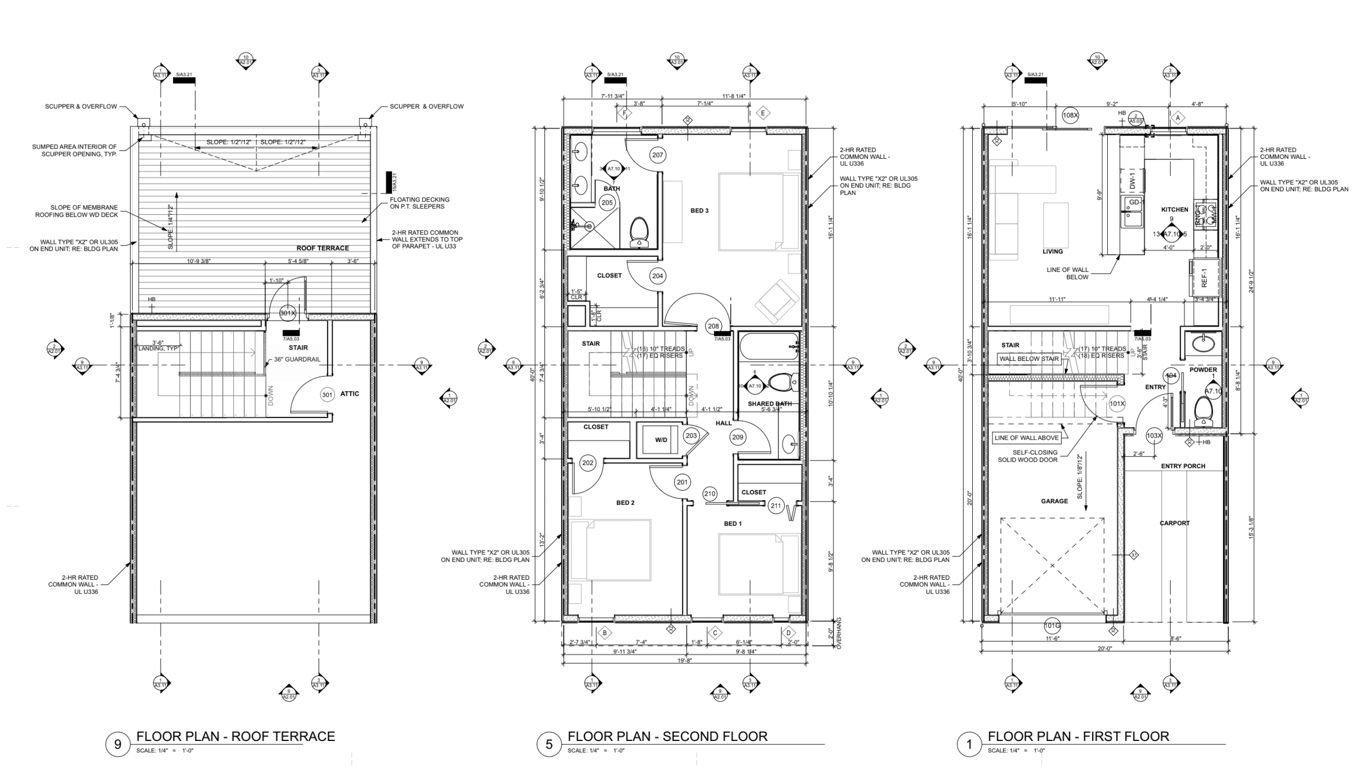
Project Summary
Project Highlights
32 homes
The site’s great location is demonstrated with the following estimated drive times:
University of Texas 10 minutes
6th Street / Downtown Austin 12 minutes
Austin‐Bergstrom Int’l Airport 10 minutes
The Domain 14 minutes
Tesla campus <10 minutes
Highway 183 2 minutes
Mueller/Springdale General <10 minutes